Thi công Mái kính – Lam nhôm – Hạng mục kiến trúc đặc thù

Thi công Mái kính – Lam nhôm – Hạng mục kiến trúc đặc thù

MÁI KÍNH – LAM NHÔM – HẠNG MỤC KIẾN TRÚC ĐẶC THÙ

Giải pháp hiện đại – Tối ưu ánh sáng – Bền vững theo thời gian
Thi công chuẩn kỹ thuật | Vật liệu cao cấp | Độ bền vượt trội


1. MÁI KÍNH NGHỆ THUẬT – MÁI LẤY SÁNG – MÁI KÍNH CƯỜNG LỰC KHUNG THÉP

1.1. Mái kính nghệ thuật

• Thiết kế theo yêu cầu kiến trúc: vòm cung, uốn cong nghệ thuật, mái chóp, mái giật cấp, mái phẳng, tạo điểm nhấn sang trọng cho biệt thự, sảnh đón, quán cà phê, showroom.
• Ứng dụng kính cường lực – kính dán an toàn – kính Low-E – kính phản quang, giúp chống chói, chống nhiệt, tăng thẩm mỹ mặt tiền.
• Kết cấu liên kết tối ưu: pad inox, chân nhện spider, pát treo, bản mã liên kết thép, đảm bảo an toàn cao.

1.2. Mái lấy sáng thông minh

• Giải pháp đưa ánh sáng tự nhiên vào không gian: giếng trời, sân sau, hành lang, khu thông tầng, mái sảnh phụ.
• Hệ gioăng EPDM & keo silicone chuyên dụng chống thấm tuyệt đối, hoạt động ổn định kể cả khi mưa lớn, gió mạnh.
• Có thể tích hợp mái kính mở thoát khói, cảm biến tự động, phù hợp công trình hiện đại.

1.3. Mái kính khung thép – inox – nhôm hệ

• Khung thép mạ kẽm, hộp thép chịu lực, sơn tĩnh điện chống gỉ – bền màu 10–15 năm.
• Thiết kế kết cấu theo tiêu chuẩn tải trọng: chịu gió bão, chịu lực va đập, tải trọng kính.
• Hệ khung đa dạng: khung hộp, khung tổ hợp CNC, khung giấu, khung nổi, đáp ứng cả kiến trúc tối giản lẫn kiến trúc phức tạp.

2. LAM NHÔM CHẮN NẮNG – LAM KIẾN TRÚC TRANG TRÍ

2.1. Lam nhôm chắn nắng kỹ thuật

• Là giải pháp giảm nhiệt tự nhiên, giúp tối ưu năng lượng cho công trình.
• Đa dạng cấu hình: lam đứng – lam ngang – lam cố định – lam xoay điều hướng, tùy theo góc nắng từng mặt nhà.
• Hình dáng lam: lá liễu, lam hộp chữ nhật, lam elip, lam cánh chim, lam oval, phù hợp mọi phong cách kiến trúc.
• Tăng độ riêng tư nhưng vẫn thông thoáng, hiệu quả đặc biệt cho mặt tiền nhà phố & tòa nhà văn phòng.

2.2. Lam nhôm trang trí kiến trúc

• Tạo hiệu ứng thị giác mạnh mẽ cho mặt tiền: tấm lam phay CNC, lam họa tiết nghệ thuật, lam 3D, lam chạy ngang chạy dọc theo thiết kế.
• Che khuyết điểm công trình: bít đầu hồi, che điều hòa, che bồn nước, tạo sự đồng nhất tổng thể.
• Thích hợp cho villa, khách sạn, trung tâm thương mại, quán cà phê – nơi yêu cầu tính thẩm mỹ cao.

2.3. Vật liệu & tiêu chuẩn

• Nhôm hợp kim chất lượng cao, sơn tĩnh điện Anode – PVDF – Akzonobel, bền màu 20–25 năm.
• Khung đỡ chịu lực bằng nhôm/thép đồng bộ, chống rung – chống xoắn.
• Thi công đúng kỹ thuật đảm bảo độ an toàn, không cong vênh – không xuống màu – không rỉ sét.

3. HỆ NHÔM CẦU CÁCH NHIỆT – CỬA CHỐNG CHÁY – CỬA CHỐNG ỒN

3.1. Hệ nhôm cầu cách nhiệt (Thermal Break)

• Có lớp polyamide cách nhiệt giúp ngăn truyền nhiệt giữa trong – ngoài, giảm 40–60% thất thoát nhiệt năng.
• Phù hợp công trình yêu cầu cao: biệt thự, khách sạn, tòa nhà văn phòng chuẩn xanh.
• Kết hợp kính hộp 2–3 lớp, gioăng EPDM cao cấp, phụ kiện đồng bộ tạo độ kín khít và chống gió tuyệt đối.

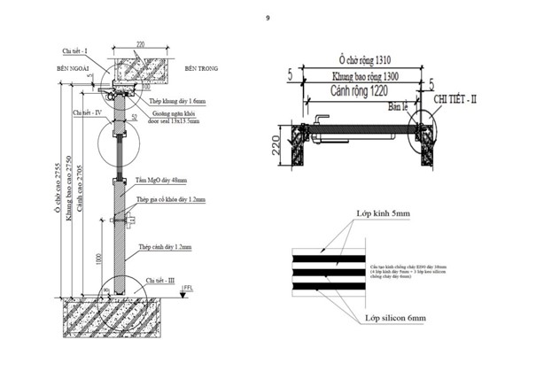
3.2. Cửa chống cháy tiêu chuẩn PCCC

• Cấu tạo nhôm chuyên dụng kết hợp kính chống cháy EI60 – EI90 – EI120, chống lan truyền nhiệt & khói.
• Phù hợp lối thoát hiểm, sảnh kỹ thuật, khu thương mại, nhà xưởng.
• Kiểm định theo TCVN – QCVN, đảm bảo an toàn cho công trình.

3.3. Cửa chống ồn – cách âm cao cấp

• Sử dụng kính hộp 2 lớp, 3 lớp, kính dán PVB, giảm âm 40–45 dB.
• Phù hợp khu vực gần đường lớn, sân bay, công trường, phòng ngủ, phòng thu âm, phòng làm việc.
• Vận hành êm ái với hệ gioăng kép, bản lề – phụ kiện chống rung.

4. Quy trình thi công chuẩn – nhanh – an toàn

  1. Khảo sát công trình – đo đạc chi tiết
  2. Lên phương án thiết kế 2D/3D – tối ưu kỹ thuật
  3. Báo giá vật tư rõ ràng theo từng hạng mục
  4. Gia công CNC – kiểm tra chất lượng trước khi xuất xưởng
  5. Thi công lắp đặt chuẩn kỹ thuật & tiêu chuẩn an toàn
  6. Nghiệm thu – vệ sinh – bàn giao
  7. Bảo hành – bảo trì định kỳ

 

Hotline