Căn hộ 75m2 nằm trên tầng 21 của một tòa nhà cao tầng tại Bình Thạnh, Tp.HCM
trở nên tiện nghi, rộng rãi sau khi cải tạo
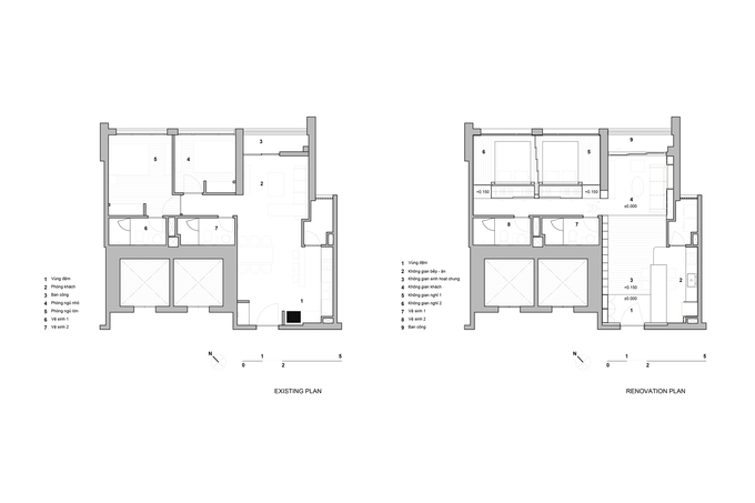
Trước khi cải tạo, không gian căn hộ bị chia nhỏ vì có nhiều vách ngăn. Khi bắt tay vào thực hiện
công trình, các KTS đã phá bỏ vách ngăn và sử dụng chính hệ thống tủ, cửa lùa, vật liệu và
cao độ sàn để tạo sự phân cách giữa các khu vực sinh hoạt.
Các không gian trong nhà có sự liên kết với nhau và tràn ngập ánh sáng sau khi cải tạo
Tường nhà được thiết kế thành hệ kệ lớn, vừa tạo tính thẩm mỹ cho không gian,
vừa tăng chức năng lưu trữ trong nhà
Sử dụng hệ vách ngăn thay cho tường đã giúp không gian phòng ngủ được mở rộng và thoáng hơn
KTS đã sử dụng thủ pháp phân định không gian tinh tế bằng việc thay đổi độ cao sàn
giữa các khu vực chức năng trong nhà
Trẻ nhỏ có thêm nơi vui chơi, các thành viên trong nhà thêm phần gắn kết với nhau hơn
khi được sống trong một không gian mở
Nhược điểm bếp nhỏ được cải thiện khi sử dụng chiếc bàn ăn lớn tícht hợp với chức năng đảo bếp
Chất liệu đá mài và gỗ tự nhiên mang đến vẻ đẹp thân thiện với môi trường cho căn hộ sau cải tạo
Lối đi cũng trở nên rộng hơn khi sử dụng đá mài sáng màu
Hệ thống cửa lùa giúp tiết kiệm diện tích cho ngôi nhà
Vách tường ngăn cách trở nên mềm mại và đậm chất nghệ thuật khi được thiết kế thành kệ trang trí.
Tổng chi phí cải tạo ngôi nhà là 950 triệu đồng.


(028) 667 222 88
: xaydungancu@gmail.com