Xây dựng nhà lệch tầng là một trong những kiểu xây dựng không thể bỏ qua với diện tích đất ngày càng hạn hẹp như hiện nay. Tuy nhiên, kỹ thuật xây nhà lệch tầng không hề đơn giản. Cần những đơn vị giàu kinh nghiệm và thật sự am hiểu. Bạn đang trong quá trình tìm kiếm những mẫu thiết kế đẹp cho mình? Xây Dựng An Cư xin giới thiệu đến bạn đọc tất tần tật về xây dựng nhà phố lệch tầng
Thế nào là nhà lệch tầng?
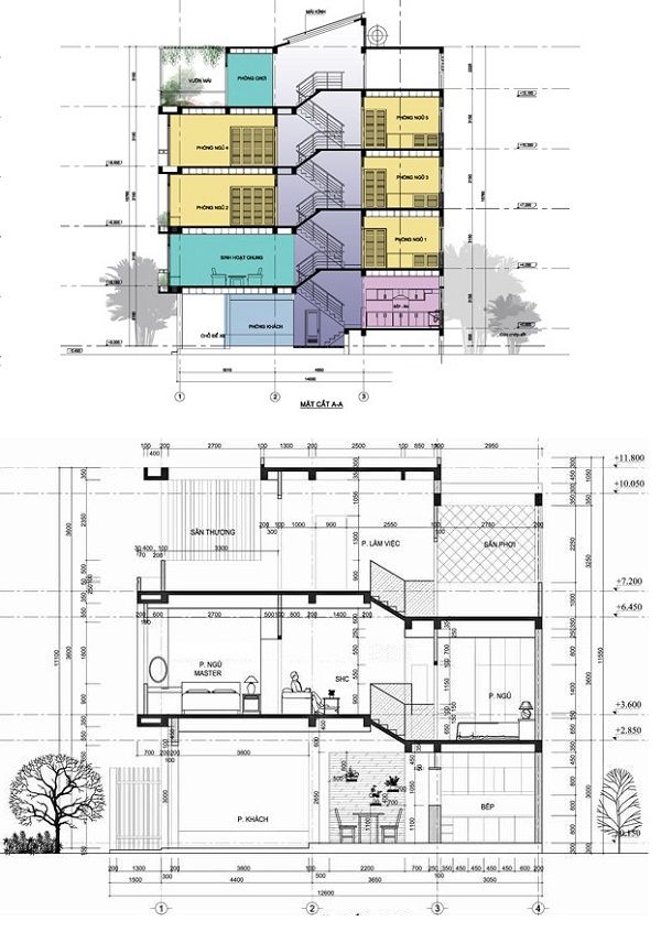
Xây nhà lệch tầng là kiểu nhà được thiết kế với có các mặt sàn chênh lệch về độ cao, các mặt sàng nằm ở từng phần theo kiểu lệch. Với cách bố trí linh hoạt và thường là cầu thang ở giữa nhà và sẽ có từ 2-3 phòng bao quanh. Thiết kế nhà lệch tầng đẹp nhìn từ trên xuống, khu vực cầu thang trở thành giếng trời lấy sáng, gió cho không gian nhà.
.jpg)
Đây là kiểu kiến trúc mang lại các mẫu nhà lệch tầng hiện đại, phòng cách hiện đại với nhiều lợi ích cho không gian sống, đẹp và thoải mái nhưng cũng có một số hạn chế nhất định mà nếu muốn làm nhà lệch tầng cần phải tính toán đến lợi - hại nhằm lựa chọn được mẫu thiết kế nhà phù hợp với nhu cầu, điều kiện tài chính mặt bằng không gian xây dựng.
Các kiểu nhà lệch tầng
Hiện nay các nhiều các kiểu nhà tầng lệch hiện đại nhưng chủ yếu có 2 dạng chính đó là:
- Cách xây nhà lệch tầng thứ nhất 1: cách làm nhà lệch tầng bằng cách nâng phần sau bếp và nhà ăn lên ít bậc để phân chia không gian với phía trước nhà. Và ở phía sau nhà sẽ thiết kế cầu thang đi lên theo kiểu kiến trúc đan xen qua lại để lên các tầng trên và yêu cầu cách mặt bằng nhà vài bậc để phân chia không gian phía sau với phía trước nhà. Cách này yêu cầu mặt bằng nhà lệch tầng của từng tầng sẽ lệch nhau.
- Cách xây nhà lệch tầng thứ 2: Các mẫu thiết kế nhà lệch tầng kiểu này sẽ tạo một sàn lửng, có cầu thang đi lên và biến nó thành một tầng lửng. Phần sau của nhà sẽ có độ cao khoảng 2,5m và tầng dưới thường được bố trí nhà để xe, kho, vệ sinh, kết hợp kinh doanh… Đối phần lệch lửng sẽ đặt bếp ăn, phòng khách. Cách này thì ít người sử dụng hơn bởi có một số các hạn chế về không gian bó hẹp và khó mở rộng không gian hơn.

Nhìn chung, các thiết kế mẫu nhà tầng lệch còn có thể sử dụng xây dựng mẫu nhà ống 1 tầng lệch cho đến các mẫu thiết kế nhà 2 tầng lệch (nhà 1 trệt 1 lầu lệch tầng), các mẫu nhà ống 2 tầng sàn lệch và nhà 3, 4 tầng… lệch mà vẫn đảm bảo được không gian lấy sáng.
Thêm vào đó, các mẫu thiết kế nhà lệch tầng có thể kết hợp mang lại cho không gian nhiều tính năng với các mẫu nhà hợp yêu cầu cuộc sống, bố trí không gian, nội thất nhà lệch tầng như: Nhà lệch tầng kết hợp kinh doanh, nhà lệch tầng có giếng trời, thiết kế nhà lệch tầng có gara, nhà lệch tầng có gác lửng, nhà lệch tầng có thang máy.
Xu hướng xây làm nhà lệch tầng đang rất nổi trội với nhiều điểm thiết kế sáng tạo, sành điềm các mẫu nhà lệch tầng hiện đại, đơn giản và phù hợp với các không gian nhỏ bé, hẹp và chiều sâu hạn chế.
Nhà lệch tầng ưu và nhược điểm
Xây nhà kiểu lệch tầng hiện nay được ứng dụng cao, thích hợp với nhiều không gian và mang những phong cách khác nhau. Bạn hoàn toàn có thể nhìn thấy các kiểu mẫu thiết kế nhà ống lệch tầng, nhà phố, nhà lô phố lệch tầng cho đến các kiều nhà vườn, nhà vuông lệch tầng.
Vậy, nhà lệch tầng có tác dụng gì? hay cách hạn chế của nhà lệch tầng là gì? Các bạn có thể tham khảo những ưu và nhược điểm của nhà lệch tầng ra sao dưới đây nhằm giúp nhận điện được mẫu nhà phù hợp với không gian, mặt bằng xây dựng phù hợp với kiểu nhà nào.
- Ưu điểm nhà lệch tầng:
+ Nhà đẹp lệch tầng thoáng mát: Với bố trí cầu thang ở giữa và xung quanh là các phòng chức năng và thường khu vực cầu thang trở thành giếng trời nhà lệch tầng giúp lấy sáng, gió tự nhiên hiệu quả, mang lại sự thoáng mát, không khí dễ chịu cho gia đình thay vì những thiết kế nhà ống, nhà phố hẹp kín mít chỉ với một đường ra thông thường.
Thêm vào đó, bởi khả năng tiếp xúc với điều kiện thiên nhiên bên ngoài tốt nên luôn tạo được cảm giác dễ chịu, gần gũi với thế giới tự nhiên, dễ dàng trang trí không gian với những cây xanh hay tạo thành các khu vực thư giãn, đọc sách đầy nắng gió, không hề ngột ngạt.
+ Phong cách nhà lệch tầng giúp tạo cảm giác nhà rộng hơn: với ưu điểm là độ cao của trần khá dễ điều chỉnh vì vậy mà nhà lệch tầng sẽ có khá cách để bố trí không gian linh hoạt từ nhà gác lửng đẹp tới ban công, hay sân thượng mang nhiều chức năng khác nhau dù diện tích thực sự là nhỏ hẹp.
+ Kiến trúc nhà lệch tầng đẹp bởi khả năng mở rộng tầm nhìn: Không gian nhà lệch tầng có được lối kiến trúc lấy sáng thông minh và tạo nên được nhiều góc nhìn đa dạng phong phú, ứng dụng trang trí nhà lệch tầng dễ dàng, giúp không gian luôn có được những điểm nhấn khác biệt.
- Nhược điểm nhà lệch tầng:

Song song với những ưu điểm của nhà lệch tầng thì nó cũng tồn tại những hạn chế và đây cũng là điểm cần phải tính toán các điều kiện mặt bằng, nhu cầu sinh hoạt, người sử dụng trước khi lựa chọn mẫu thiết kế này.
+ Các mẫu nhà hà lệch tầng thường bị giới hạn nhất định: Các thiết kế nhà lệch tầng dễ gặp trở ngại về thoát nước vì thường sử dụng cho không gian nhà mặt tiền lô phố, hẹp ngang và có chiều sâu lớn nên việc lấy sáng khó có thể khắc phục nhờ giếng trời thông tầng nhưng lại gây ra trở ngại trong việc lắp đặt hệ thống thoát nước và chống thấm.
+ Làm nhà lầu lệch tầng thường có thiết kế yêu cầu kỹ thuật cao: Những căn nhà lệch tầng 2 mặt tiền hay 1 mặt tiền có kiến trúc thường phức tạp, yêu cầu kỹ thuật cao trong cả thiết kế và thi công mới có thể đảm bảo tận dụng tốt các khoảng không gian nhà hẹp và đảm bảo nguồn sáng, sự sống tự nhiên cũng như tránh một số những nguy hiểm cho người sử dụng không gian kiến trúc này. Vì vậy, các kiến trúc sư sẽ phải tốn nhiều công sức để có được bản vẽ autocad nhà lệch tầng chi tiết.
Thêm vào đó, nhà lệch tầng có nhiều chi tiết trong thi công và trang trí nhà lệch tầng đẹp hay khó khăn trong việc thiết kế và lắp đặt hệ thống thoát nước khiến cho chi phí xây dựng và thời gian thi công cao hơn so với các mẫu nhà ống, nhà phố khác.
+ Tính an toàn cho người sử dụng: Đặc trưng của nhà lệch tầng đó là cầu thang liền cửa nên chỉ cần mở cửa là đến cầu thang lên xuống. Chính vì thế mà sẽ cần phải có những thiết kế kỹ càng, khoa học giúp giảm các nguy hiểm.
Đặc biệt với các gia đình có người già, trẻ nhỏ thì không gian mở giữa các tầng lại dễ gây ra các vấn đề nguy hiểm mà bạn cần phải đối mặt. Bên cạnh đó, cầu thang chiếm diện tích mặt bằng nhà lệch tầng khá lớn nên sẽ cần có phương án thang phụ để nối các mặt sàn giúp không gian linh hoạt hơn.

Có nên xây nhà lệch tầng không?
Nhà lệch tầng và nhà thông tầng hay các kiểu nhà khác đều có những nhược điểm và ưu điểm nhất định vì vậy việc có nên làm nhà lệch tầng không sẽ phụ thuộc vào đánh giá mặt bằng xây dựng cũng như nhu cầu sử dụng phù hợp với loại nhà ống lệch tầng hiện đại, đơn giản và các nhược điểm này có thể khắc phục hay chấp nhận được hay không.
Nhưng nếu bạn muốn tìm cho câu hỏi thì cũng có thể tìm kiếm thêm một số những trường hợp nào nên xây nhà lệch tầng và các lưu ý trong việc thiết kế nhà tầng lệch dưới đây:
Trường hợp nào nên xây nhà lệch tầng?
Xây dựng nhà lệch tầng, thiết kế nhà lô lệch tầng đẹp sẽ phù hợp với nhà có diện tích nhỏ, chiều ngang hạn chế về mặt tiền (chiều ngang nhà) và có chiều dài (sâu) của nhà lớn nên hạn chế về giải pháp lấy sáng, gió cũng như giải quyết được các vấn đề không gian sinh hoạt nhỏ hẹp.
Đặc biệt đặc trưng của nhà lệch tầng diện tích nhỏ là có độ chênh của các tầng mà không phụ thuộc nhiều vào tính chất sử dụng, sở thích cá nhân hay số lượng người trong gia đình… nên dễ lựa chọn cho không gian hẹp.
Các mẫu nhà đẹp 4m lệch tầng hay mẫu nhà mặt tiền 3m, 5m tầng lệch rất phổ biến có thể giải quyết được bài toán về không gian. Ngoài ra cũng có nhiều các thiết kế nhà lệch tầng 6m hoặc 7m mặt tiền với sơ đồ nhà lệch tầng đơn giản và dễ thiết kế, bố trí hơn so với nhà lệch tầng hẹp 3, 4m mặt tiền.
.jpg)
Bên cạnh đó, nhà lệch tầng có thể gia tăng diện tích sử dụng và thích hợp với những khu vự chạn chế về số tầng xây dựng nhà ở, thì lựa chọn các bản vẽ thiết kế nhà lệch tầng sẽ giúp gia tăng diện tích sử dụng, nhìn phía trước có thể là hai tầng nhưng thực tế đằng sau là ba tầng hoặc hơn.
Có điều bạn phải cân nhắc tới yếu tố kỹ thuật thiết kế thi công cũng như chi phí về xây dựng, đối tượng sử dụng nhà để lựa chọn quyết định có nên lựa chọn các bản vẽ nhà lệch tầng hay không. Thống nhất về quan điểm khi nào nên xây nhà lệch tầng thì lời khuyên đó là khi sở hữu mặt bằng xây dựng nhỏ, hẹp ngang, độ dài đất lớn.
Những không gian nhà có đất vuông, không gian đất đủ rộng, có nhu cầu cần mặt bằng rộng rãi, diện tích đất có chiều sâu ngắn hay có người già và trẻ nhỏ nên cân nhắc lựa chọn mẫu nhà lệch tầng này và thường không nên lựa chọn vì nhà lệch tầng có nhiều cầu thang và mở cửa là tiếp xúc với cầu thang nên dễ gây ra tình trạng mất an toàn khi sử dụng. Hơn nữa, nhà vuông mặt tiền đủ lớn dễ lấy sáng nên không nhất thiết phải bố trí nhiều cầu thang và sử dụng để lấy sáng, tốn diện tích.
Lưu ý khi xây nhà lệch tầng
Khi xây nhà lệch tầng sẽ cần phải lưu ý các vấn đề có liên quan tới phong thủy cũng như thiết kế kỹ thuật đặc biệt là cầu thang sao cho việc phân chia các phòng chức năng đẹp, tiện nghi và đảm bảo an toàn khi sử dụng. Thường nhà hẹp, ít sáng và khí thì việc sử dụng thiết kế nhà lệch tầng có giếng trời giúp cân bằng năng lượng nhà ở nên không những tốt cho sức khỏe về khoa học, tiết kiệm năng lượng mà về phong thủy cũng được cân bằng. Nhưng thiết kế mẫu nhà 2, 3, 4 tầng lệch sẽ cần lưu ý các vấn đề sau:

- Cầu thang khi xây dựng nhà lệch tầng: Cầu thang là một trong những vị trí quan trọng trong thiết kế nhà lệch tầng cần lưu tâm nhất. Bởi hướng đi lên đi xuống không những đảm bảo tính tiện lợi, an toàn mà nó là nơi mang lại năng lượng cho căn nhà. Do đó các bản vẽ chi tiết nhà ống lệch tầng sẽ cần bố trí cầu thang vừa phù hợp đi lại vừa tích hợp tốt tính năng giếng trời nhà lệch tầng.
- Nếu gia đình có người cao tuổi nên bố trí phòng tại nơi có độ cao ổn định tránh thẳng cầu càng hay có độ lệch lớn để phòng tai nạn và thuận tiện đi lại hơn.
- Phong thủy trong bố trí không gian nhà lệch tầng: Thường người ta sẽ không bố trí cầu thang giữa nhà bởi theo phong thủy cầu thang là hành mộc mà giữa nhà là thổ nên mộc khắc thổ sẽ không tốt. Vì vậy, nếu bắt buộc bố trí cầu thang nhà lệch tầng ở giữa nhà thì nên có biện pháp chấn phong thủy để đảm bảo có vận khí tốt lành.
- Lưu ý về số tầng thì nên dựa vào tuổi của gia chủ để biết nên thiết kế nhà mấy tầng. Bởi tầng 1 là hành thủy, 2, 5 và 8 là hành thổ, 3, 4 là Mộc nên cần lưu ý đến để chọn số tầng hợp mệnh.
- Cầu thang nên tránh có hướng đi thẳng ra cửa nhà vì phong thủy cho rằng đó là hướng khi đi lên - xuống nên vận tài lộc bị ảnh hưởng và nên tránh hướng cửa để tài lộc không bị tiêu tán. Ngoài ra, cũng tránh cầu thang đâm thẳng vào bếp hoặc nhà vệ sinh ở bất cứ tầng nào vì sẽ làm năng lượng tổn hao.
- Nên chú ý nâng độ cao, lệch tầng giúp nhà thoáng và đẹp hơn và cũng giúp phong thủy có được không gian thoáng, sinh khí tốt hơn.
Chi phí xây nhà lệch tầng
Giá xây dựng nhà lệch tầng có thể nói là vấn đề cần phải được tính toán kỹ lưỡng. Bởi chi phí xây nhà ống lệch tầng giá rẻ thì khi so với các mẫu nhà khác vẫn có mức giá cao hơn bởi việc thi công sẽ phức tạp, kỹ thuật hơn, cần trang trí nhà lệch tầng đẹp nên cũng đội giá.
Vì vậy bạn cần có những ngôi nhà lệch tầng đẹp chắc chắn sẽ cần tính toán tỉ mĩ từ khâu thiết kế tới vấn đề xây dựng. Các bản vẽ sẽ cần chi tiết bao gồm cả phần thô và hoàn thiện lâu công, vật liệu xây dựng, trang trí nội thất nhà lệch cần cẩn thận, khác biệt ở từng khu vực. Chính vì thế mà không những tốn thời gian mà còn kinh phí lớn hơn so với lây nhà thông tầng, thẳng tầng bình thường khác.
Trụ Sở Chính: 36 Bàu Cát 7, Phường 14, Tân Bình, HCM xem đường đi
Chi Nhánh 1: 36 Đường 27, KĐT Vạn Phúc, Thủ Đức xem đường đi
Chi Nhánh 2: E6/163B ấp 5, Quốc Lộ 50, Phong Phú, Bình Chánh
Tư Vấn Thiết Kế - Xây Dựng: 0903.997.279
Văn Phòng - Kế Toán
(028) 667 222 88
LH Công tác khác: 0933.834.369
: xaydungancu@gmail.com
xaydungancu.com.vn, xaydungsg.com.vn
XƯỞNG NỘI THẤT HOÀN THIỆN
E7/163/18B Ấp 5 - Bình Hưng - Bình Chánh - TPHCM
Hotline